Planungsbüro Leitermann
Home
Kontakt
Übersicht Einfamilienhäuser Doppelhäuser - Mehrfamilienhäuser Hotels Landwirtschaftliche Gebäude Gewerbebauten Sanierungen - Bauen im Bestand
Übersicht Eingabeplanung Werkplanung Tragwerksplanung Brandschutzplanung SiGe - Koordination Bauleitung
Home Projekte Übersicht Einfamilienhäuser Doppelhäuser - Mehrfamilienhäuser Hotels Landwirtschaftliche Gebäude Gewerbebauten Sanierungen - Bauen im Bestand Leistungen Übersicht Eingabeplanung Werkplanung Tragwerksplanung Brandschutzplanung SiGe - Koordination Bauleitung
Planungsbüro Leitermann
planungsbüroleitermann
Kontakt

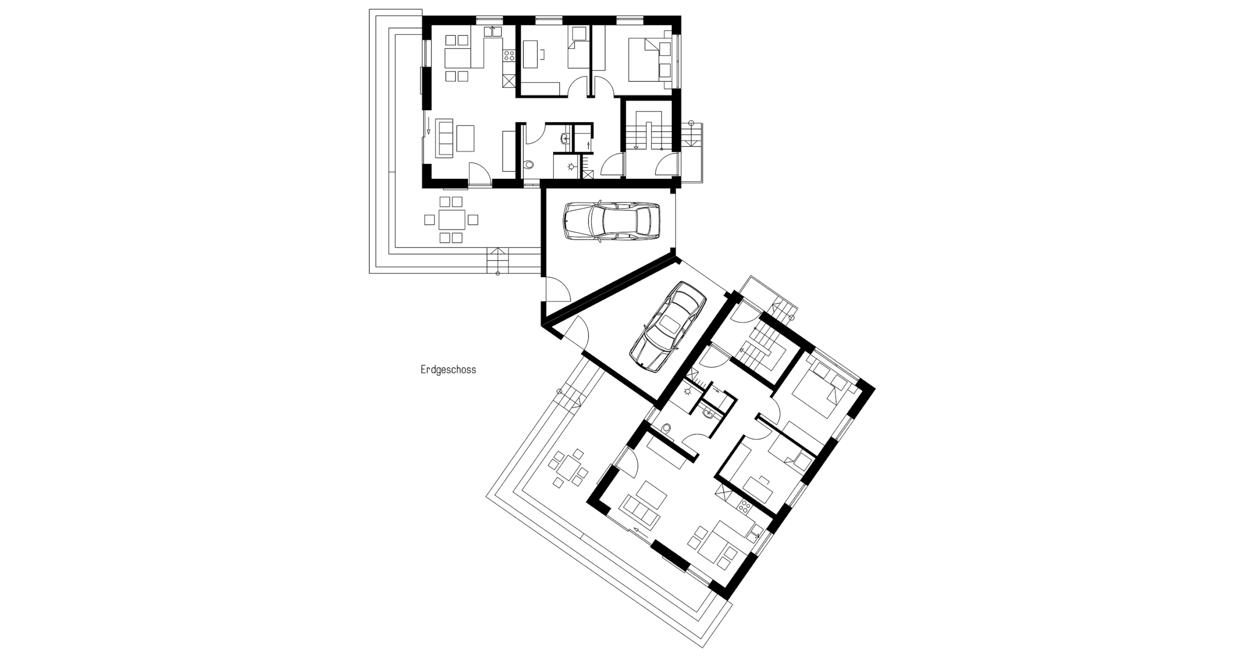
Zwei Einfamilienhäuser in Grassau
- Oberdorf -

Entwurfsplanung - Eingabeplanung - Visualisierung

pbleitermann_zwei_efh_grassau_rendering_h_1500px.jpg
pbleitermann_zwei_efh_grassau_eg_h_1500px.gif
1 2
Zurück Weiter
pbleitermann_zwei_efh_grassau_rendering_h_1500px.jpg
pbleitermann_zwei_efh_grassau_eg_h_1500px.gif
Anfrage
Name *
Thank you!
Planungsbüro Leitermann
19 Bachstraße,
Reichertshofen, BY, 85084,
Germany
info@pb-leitermann.de
Öffnungszeiten
Mo 7am - 6pm
Di. 7am - 6pm
Mi. 7am - 6pm
Do. 7am - 6pm
Fr. 7am - 6pm
Sa. closed
So. closed
KontaktImpressum